---
title: "Afdeling 085 - Åbyvej Familieboliger"
description: "Afdeling 085 - Åbyvej Familieboliger"
date: "2026-04-28"
created: "2025-02-25"
---

-
-

# Åbyvej Familieboliger

Afdeling 85

## Her er der rart at bo

Vil du søge bolig i denne afdeling? Bliv medlem og skriv dig på venteliste på Aarhusbolig.

[Søg bolig i afdelingen](https://aarhusbolig.dk/soeg-bolig/find-boligafdeling/afdelingspraesentation/?key=715_85&amp;StepBack=true)

## Velkommen til Åbyvej Familieboliger

Afdelingen er beliggende på Lokesvej 2, på hjørnet af Åbyvej og Lokesvej i Åbyhøj. Afdelingen byder både på 8 rummelige rækkehuse i 2 plan, der vender ud mod Vesterled, en charmerende haveforening med små kolonihavehuse.

## Faciliteter

Elevator

Nej

Husdyr

Ja

Der må holdes et husdyr pr. bolig.

Have

Ja

Der er have til stue lejlighederne.

Altan

Nej

Carport/garage

Nej

Forbrug

Ja

Der betales aconto vand og varme via huslejen. El afregnes direkte til leverandør.

Hårde hvidevarer

Ja

Boligerne har kun ovn og kogeplade.

Selskabslokale

Nej

TV og internet

Ja

Leveres af VIOS.

Kælderrum

Ja

Alle boligerne har et tilhørende skur.

Trappevask

Nej

Gæsteværelse

Nej

Vaskeri

Nej

Vedligehold

A-Ordning

Legeplads

Nej

Ladestander

Nej

Røgfri

Ja

Rygning i boligerne er ikke tilladt.

                        Se flere

## Her er der rart at bo

Bliv en del af det gode fællesskab

## Lejemål i afdelingen

Almindelig bolig

4 værelses

boliger

Boligtype

Værelser

Størrelse

Husleje

Indskud/dp

Plantegning

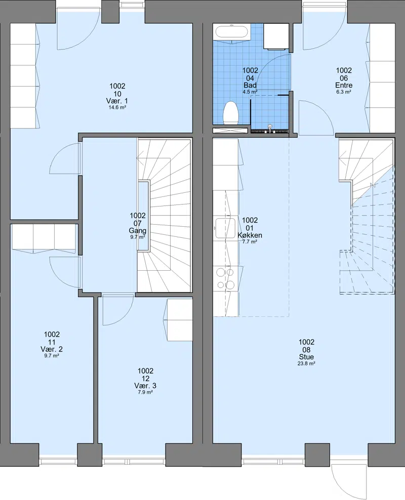
Almindelig bolig

4

101 m²

9977 kr.

44500 kr.

![](https://alboa.dk/i/MOLIRIMEDIA/321c8e1a-50c6-419a-291e-08dda22a7775?width=800)

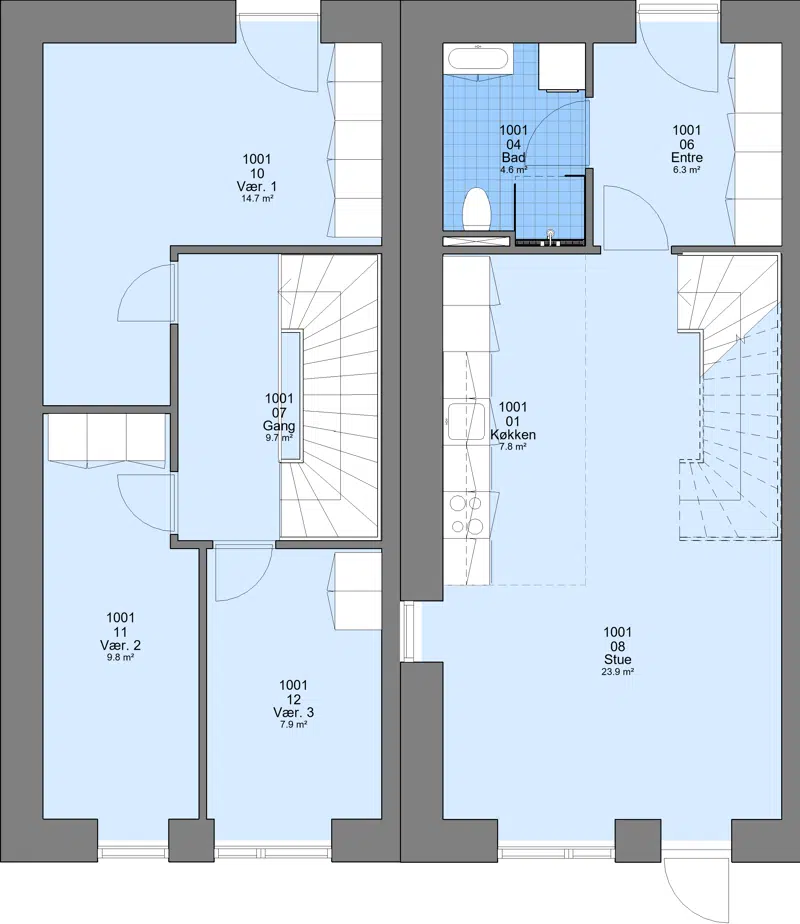
Almindelig bolig

4

111 m²

10965 kr.

49000 kr.

![](https://alboa.dk/i/MOLIRIMEDIA/03394766-c0be-4dd5-291a-08dda22a7775?width=800)

## Området

Midtbyen

meter

Park/natur

meter

Træningsmuligheder

meter

Offentlig transport

meter

Indkøbsmuligheder

meter

Skole

meter

Institution

meter

## Inspektør

### Lars Tind Kolding

87406766

ltk@alboa.dk

## Varmemester

### Thomas Bjørn Andersen

Adresse:

Abildgade 13, st. th

8200 Aarhus N

87406833

vm033@alboa.dk

### Kontakt

Telefontid:
Man-Fre 08.00 - 10.00
Kontortid:
Mandag 08.30 - 09.30
Torsdag 15.00 - 16.00

## Regnskaber
