---
title: "Afdeling 081 - Svaneparken"
description: "Afdeling 081 - Svaneparken"
date: "2026-04-28"
created: "2025-01-30"
---

-
-
-

https://maps.google.dk/?q=56.1498733,9.8891931

# Svaneparken

Afdeling 81

## Velkommen til Svaneparken

Svaneparken er et moderne og trygt boligfællesskab opført i 2015-2016, med fokus på trivlsel og godt naoskab. Boligerne har egen have, og fælleshuset skaber rum til sociale aktviteter og fælles oplevelser. Afdelingens boliger er både for familier og +55.

## Faciliteter

Elevator

Nej

Husdyr

Ja

Det er tilladt at holde en hund eller en kat.

Have

Ja

Der er have til alle lejemål.

Altan

Nej

Carport/garage

Nej

Forbrug

Ja

Vand og varme afregnes direkte til leverandør. El og vandafledningsafgift afregnes efter bi-måler

Hårde hvidevarer

Ja

Komfur (induktionsplade og varmluftsovn) ja, køle- og fryseskab nej.

Selskabslokale

Ja

Selskabslokale (fælleshus) for afdelingens beboere.

TV og internet

Ja

Leveres af Yousee + AURA fiber

Kælderrum

Ja

Der er tilknyttet udhus/skur til alle lejemål.

Trappevask

Nej

Gæsteværelse

Nej

Vaskeri

Nej

Vedligehold

A-Ordning

Legeplads

Ja

Ladestander

Ja

Der er ladestandere opsat i afdelingen

Røgfri

Ja

Rygning i boligerne i nr. 7,9,11, 14, 16, 21, 23, 30, 32, 34, 48 og 50 samt på boligernes udearealer er ikke tilladt.

                        Se flere

## Her er der rart at bo

Bliv en del af det gode fællesskab

## Lejemål i afdelingen

Almindelig bolig

3 værelses

boliger

+55 Bolig

3 værelses

boliger

Almindelig bolig

4 værelses

boliger

Almindelig bolig

5 værelses

boliger

Boligtype

Værelser

Størrelse

Husleje

Indskud/dp

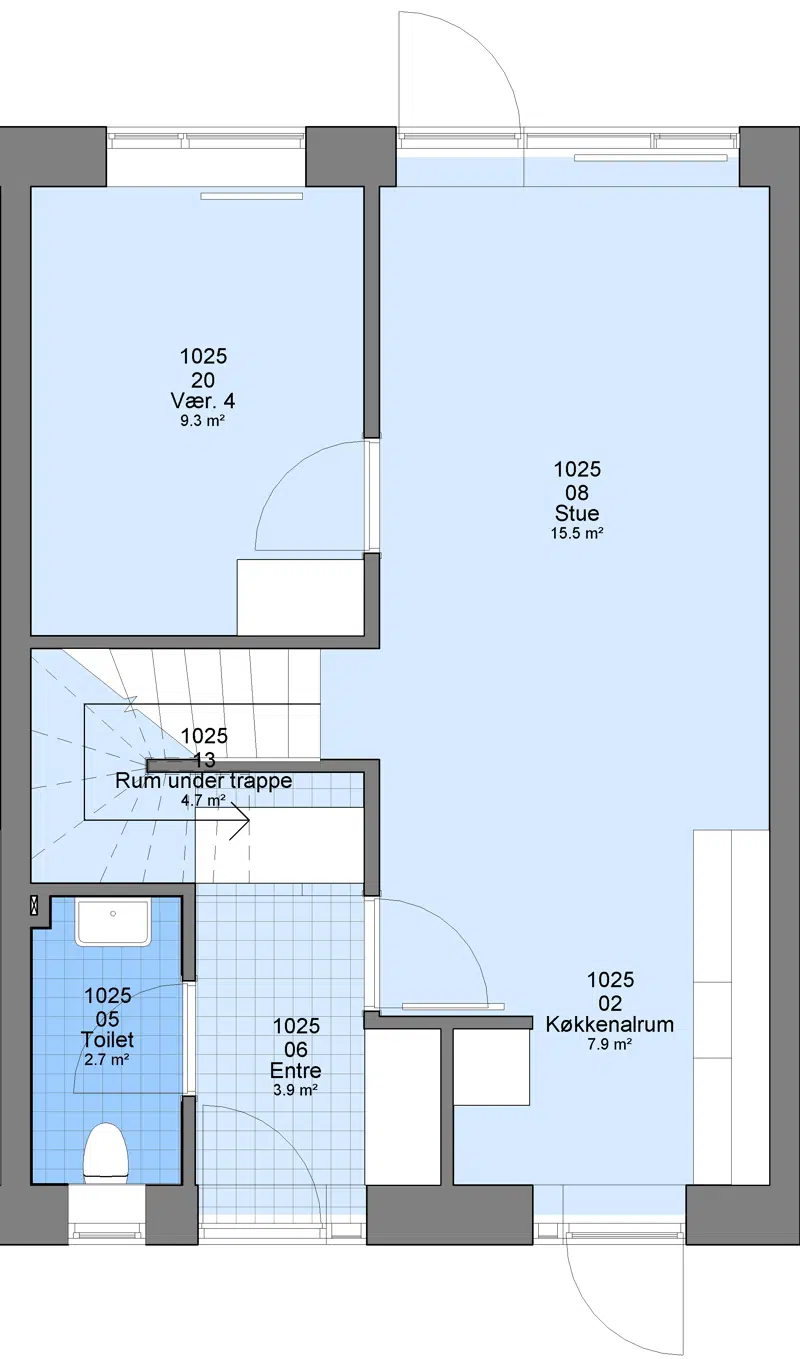
Plantegning

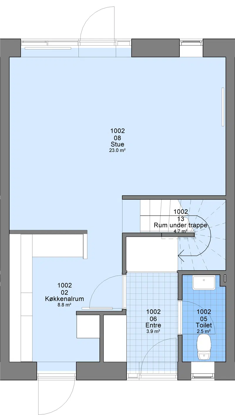
+55 Bolig

3

88 m²

9011 kr.

35300 kr.

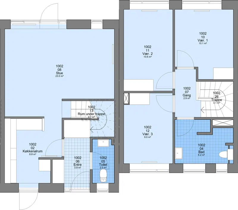
![](https://alboa.dk/i/MOLIRIMEDIA/970edc0e-9d83-48e2-bb97-08dcd3ad20a3?width=800)

Almindelig bolig

3

88 m²

9011 kr.

35300 kr.

![](https://alboa.dk/i/MOLIRIMEDIA/786fbfb0-eae9-469f-bd79-08dcd3ad20a3?width=800)

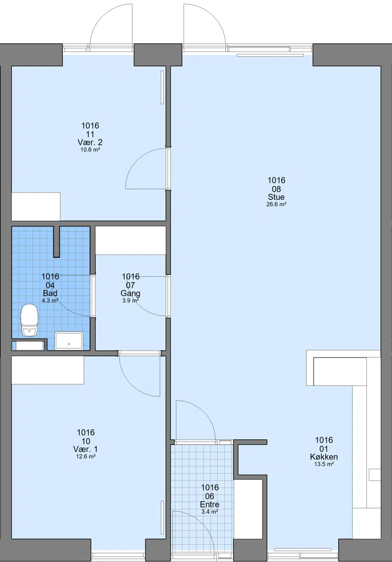
Almindelig bolig

4

104 m²

9663 kr.

39200 kr.

![](https://alboa.dk/i/MOLIRIMEDIA/ed0b845f-e318-49b1-ba0d-08dcd3ad20a3?width=800)

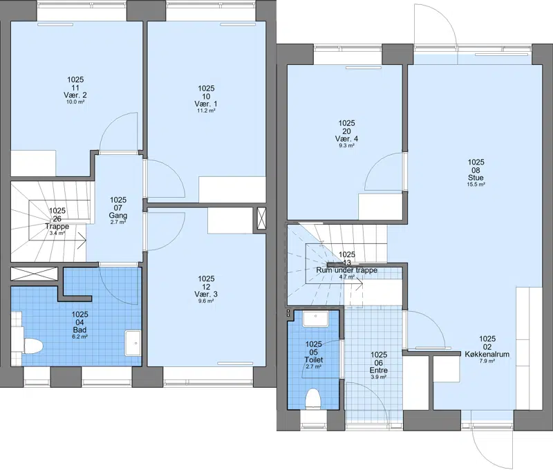
Almindelig bolig

4

104 m²

9663 kr.

39200 kr.

![](https://alboa.dk/i/MOLIRIMEDIA/13de1897-6605-44f8-c2f1-08dcd3ad20a3?width=800)






![](https://alboa.dk/i/MOLIRIMEDIA/13de1897-6605-44f8-c2f1-08dcd3ad20a3?width=800)

![](https://alboa.dk/i/MOLIRIMEDIA/6d9fbf88-2718-46c6-bbd1-08dcd3ad20a3?width=800)

![](https://alboa.dk/i/MOLIRIMEDIA/d7eb9ca2-7c08-40dc-beea-08dcd3ad20a3?width=800)

![](https://alboa.dk/i/MOLIRIMEDIA/13de1897-6605-44f8-c2f1-08dcd3ad20a3?width=800)

![](https://alboa.dk/i/MOLIRIMEDIA/6d9fbf88-2718-46c6-bbd1-08dcd3ad20a3?width=800)

![](https://alboa.dk/i/MOLIRIMEDIA/d7eb9ca2-7c08-40dc-beea-08dcd3ad20a3?width=800)

Almindelig bolig

5

107 m²

9772 kr.

40100 kr.

![](https://alboa.dk/i/MOLIRIMEDIA/174f09a8-7d10-4818-ba2d-08dcd3ad20a3?width=800)






![](https://alboa.dk/i/MOLIRIMEDIA/174f09a8-7d10-4818-ba2d-08dcd3ad20a3?width=800)

![](https://alboa.dk/i/MOLIRIMEDIA/6ba5eedc-5f14-437d-bb82-08dcd3ad20a3?width=800)

![](https://alboa.dk/i/MOLIRIMEDIA/460d0b05-5e60-4e55-c246-08dcd3ad20a3?width=800)

![](https://alboa.dk/i/MOLIRIMEDIA/174f09a8-7d10-4818-ba2d-08dcd3ad20a3?width=800)

![](https://alboa.dk/i/MOLIRIMEDIA/6ba5eedc-5f14-437d-bb82-08dcd3ad20a3?width=800)

![](https://alboa.dk/i/MOLIRIMEDIA/460d0b05-5e60-4e55-c246-08dcd3ad20a3?width=800)

## Området

Midtbyen

meter

Park/natur

meter

Træningsmuligheder

meter

Offentlig transport

meter

Indkøbsmuligheder

meter

Skole

meter

Institution

meter

## Inspektør

### Michael Vibe

87406756

miv@alboa.dk

## Varmemester

### Jan Dam Overgaard

Adresse:

Gyvelparken 7A

8464 Galten

[87 406 828](tel:87%20406%20828 "87 406 828")

vm028@alboa.dk

### Kontakt

Telefontid:
Man-Fre 08.00 - 10.00

## Regnskaber

                                [2024 Regnskab 81.pdf](https://alboa.dk/p/MOLIRIMEDIA/b598ce04-abb4-4393-37fc-08dda22a7775)

                                [2023 Regnskab 081.pdf](https://alboa.dk/p/MOLIRIMEDIA/dbdf4f82-11e1-4fa6-c71b-08dcd3ad20a3)
