---
title: "Afdeling 079 - Pilevangen"
description: "Afdeling 079 - Pilevangen"
date: "2026-04-28"
created: "2025-03-06"
---

-
-
-

https://maps.google.dk/?q=56.0466112,10.0980534

# Pilevangen

## Velkommen til Pilevangen

Afdelingen er opført i 2011/2012, i to etager - med elevator.

## Faciliteter

Elevator

Ja

Ja

Husdyr

Ja

Det er tilladt at holde en hund eller en kat. Hund på besøg er tilladt.

Have

Ja

Der er tilknyttet have til lejemål i stueplan.

Altan

Ja

Der er tilknyttet altan til 1. sals boliger.

Carport/garage

Nej

Forbrug

Ja

Vand, varme og el afregnes direkte til leverandør.

Hårde hvidevarer

Ja

Komfur, emhætte, køl-/fryseskab (kombi) tilknyttet lejemålet.

Selskabslokale

Ja

Selskabslokale fælles med de andre grundejere.

TV og internet

Ja

Leveres af Skanderborg Antenneforening.

Kælderrum

Ja

Der er tilknyttet udhus/skur til alle lejemål.

Trappevask

Nej

Gæsteværelse

Ja

1 stk. gæsteværelse - fælles med de andre grundejere.

Vaskeri

Nej

Vedligehold

A-Ordning

Legeplads

Nej

Ladestander

Nej

Røgfri

Nej

                        Se flere

## Her er der rart at bo

Bliv en del af det gode fællesskab

## Lejemål i afdelingen

+55 Bolig

3 værelses

boliger

+55 Bolig

4 værelses

boliger

Boligtype

Værelser

Størrelse

Husleje

Indskud/dp

Plantegning

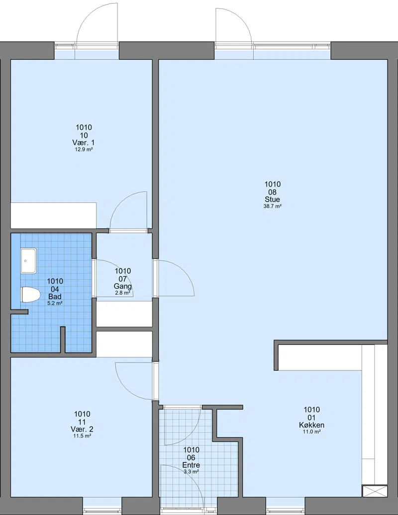
+55 Bolig

3

108 m²

9606 kr.

34600 kr.

![](https://alboa.dk/i/MOLIRIMEDIA/68312353-1dc9-41af-b9c8-08dcd3ad20a3?width=800)

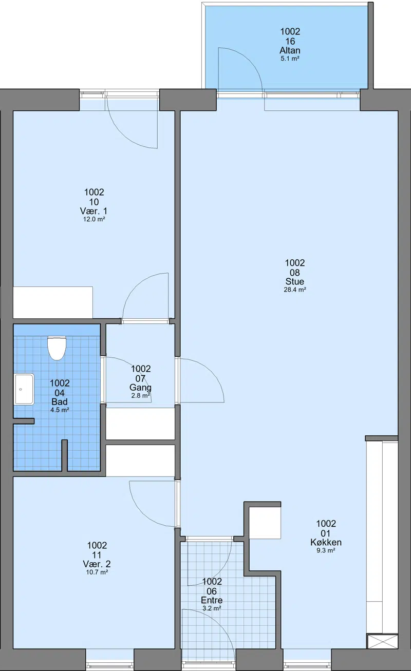
+55 Bolig

3

92 m²

8836 kr.

31500 kr.

![](https://alboa.dk/i/MOLIRIMEDIA/a113cb7b-5bbe-458d-b87b-08dcd3ad20a3?width=800)

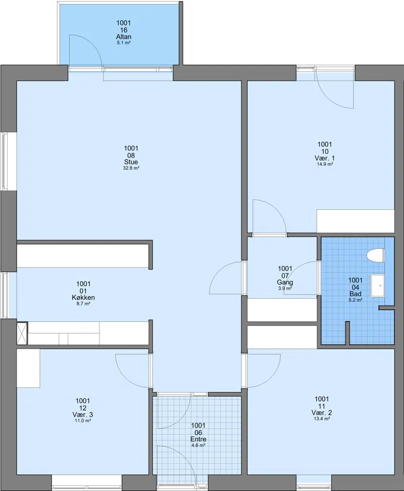
+55 Bolig

4

108 m²

9606 kr.

34600 kr.

![](https://alboa.dk/i/MOLIRIMEDIA/855fdc3f-d911-4695-b9a3-08dcd3ad20a3?width=800)

+55 Bolig

4

118 m²

10020 kr.

36200 kr.

![](https://alboa.dk/i/MOLIRIMEDIA/917fc364-cc4e-499b-c399-08dcd3ad20a3?width=800)

## Området

Midtbyen

meter

Park/natur

meter

Træningsmuligheder

meter

Offentlig transport

meter

Indkøbsmuligheder

meter

Skole

meter

Institution

meter

## Inspektør

### Michael Vibe

87406756

miv@alboa.dk

## Varmemester

### Lars Skovgaard

Adresse:

Kærgårdsparken 8A, st.

8355 Solbjerg

87406829

vm029@alboa.dk

### Kontakt

Telefontid:
Man-Fre 08.00 - 10.00
Kontortid:
Mandag 08.30 - 09.30
Torsdag 15.00 - 16.00

## Regnskaber

                                [2024 Regnskab 79.pdf](https://alboa.dk/p/MOLIRIMEDIA/32fe859f-2859-4336-3801-08dda22a7775)

                                [2023 Regnskab 079.pdf](https://alboa.dk/p/MOLIRIMEDIA/7faa4f3b-83d3-44c0-c816-08dcd3ad20a3)
