---
title: "Afdeling 074 - Frisenholt"
description: "Afdeling 074 - Frisenholt"
date: "2026-04-22"
created: "2024-09-12"
---

-
-
-

https://maps.google.dk/?q=56.089095,10.1144869

# Frisenholt

Afdeling 74

## Velkommen til Frisenholt

Rækkehusene er bygget i 2006 og tilbyder boligformer tilpasset ældre – fra 2- til 3-værelses på 75–92?m² med egen have til alle boliger. Afdelingen ligger i rolige, grønne omgivelser – tæt på både naturen og gode busforbindelser, der gør det nemt at komme rundt.

## Faciliteter

Elevator

Nej

Husdyr

Ja

Det er tilladt at holde en hund eller en kat.

Have

Ja

Der er have tilknyttet lejemål i stueplan.

Altan

Ja

1. sals lejemål: Nogle lejemål har tilknyttet altan, enkelte har tilknyttet fransk altan.

Carport/garage

Nej

Forbrug

Ja

Vand, varme og el afregnes direkte til leverandør.

Hårde hvidevarer

Ja

Komfur, emhætte tilknyttet, Køle- og fryseskab medbringes af lejer.

Selskabslokale

Ja

Selskabslokale fælles med afd. 74 - for de to afdelingers beboere.

TV og internet

Ja

Leveres af Yousee + AURA fiber

Kælderrum

Ja

Der er tilknyttet udhus/skur til alle lejemål.

Trappevask

Nej

Gæsteværelse

Ja

2 stk. gæsteværelser fælles med afd. 73 - for de to afdelingers beboere.

Vaskeri

Nej

Vedligehold

A-Ordning

Legeplads

Ja

Ladestander

Nej

Røgfri

Nej

                        Se flere

## Her er der rart at bo

Bliv en del af det gode fællesskab

## Lejemål i afdelingen

Almindelig bolig

2 værelses

boliger

Almindelig bolig

3 værelses

boliger

Almindelig bolig

4 værelses

boliger

Boligtype

Værelser

Størrelse

Husleje

Indskud/dp

Plantegning

Almindelig bolig

2

75 m²

7514 kr.

24500 kr.

![](https://alboa.dk/i/MOLIRIMEDIA/9a59db96-287a-48b9-be98-08dcd3ad20a3?width=800)

Almindelig bolig

3

93 m²

8388 kr.

27900 kr.

![](https://alboa.dk/i/MOLIRIMEDIA/49a88961-06a0-4c2e-c2dc-08dcd3ad20a3?width=800)






![](https://alboa.dk/i/MOLIRIMEDIA/49a88961-06a0-4c2e-c2dc-08dcd3ad20a3?width=800)

![](https://alboa.dk/i/MOLIRIMEDIA/bf7034ff-9800-495f-bcf4-08dcd3ad20a3?width=800)

![](https://alboa.dk/i/MOLIRIMEDIA/17e62515-e3cc-4fd0-c0b3-08dcd3ad20a3?width=800)

![](https://alboa.dk/i/MOLIRIMEDIA/49a88961-06a0-4c2e-c2dc-08dcd3ad20a3?width=800)

![](https://alboa.dk/i/MOLIRIMEDIA/bf7034ff-9800-495f-bcf4-08dcd3ad20a3?width=800)

![](https://alboa.dk/i/MOLIRIMEDIA/17e62515-e3cc-4fd0-c0b3-08dcd3ad20a3?width=800)

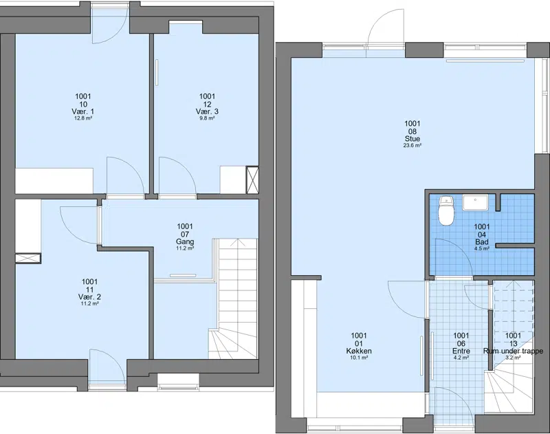
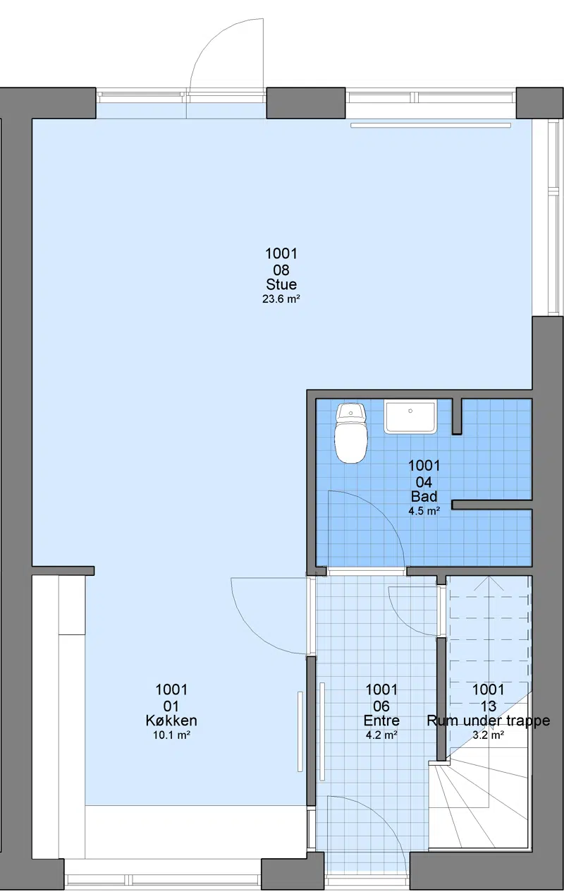
Almindelig bolig

3

91 m²

8140 kr.

27500 kr.

![](https://alboa.dk/i/MOLIRIMEDIA/c36f8fd2-a344-4e32-b89c-08dcd3ad20a3?width=800)

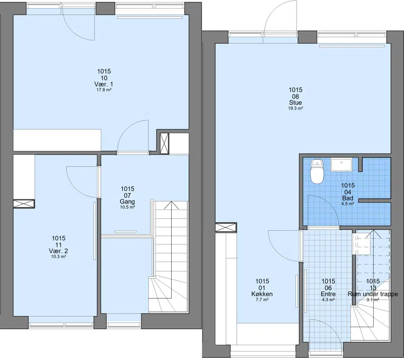
Almindelig bolig

4

104 m²

8891 kr.

29800 kr.

![](https://alboa.dk/i/MOLIRIMEDIA/fbff8f15-3fa5-4c46-c28e-08dcd3ad20a3?width=800)






![](https://alboa.dk/i/MOLIRIMEDIA/fbff8f15-3fa5-4c46-c28e-08dcd3ad20a3?width=800)

![](https://alboa.dk/i/MOLIRIMEDIA/9d1b6808-9e67-4425-bd91-08dcd3ad20a3?width=800)

![](https://alboa.dk/i/MOLIRIMEDIA/da5ffb64-8170-472f-bd78-08dcd3ad20a3?width=800)

![](https://alboa.dk/i/MOLIRIMEDIA/fbff8f15-3fa5-4c46-c28e-08dcd3ad20a3?width=800)

![](https://alboa.dk/i/MOLIRIMEDIA/9d1b6808-9e67-4425-bd91-08dcd3ad20a3?width=800)

![](https://alboa.dk/i/MOLIRIMEDIA/da5ffb64-8170-472f-bd78-08dcd3ad20a3?width=800)

## Området

Midtbyen

meter

Park/natur

meter

Træningsmuligheder

meter

Offentlig transport

meter

Indkøbsmuligheder

meter

Skole

meter

Institution

meter

## Inspektør

### Kent Boholdt Larsen

87406757

kel@alboa.dk

## Varmemester

### Tommy Tolstrup Jensen

Adresse:

Torvevænget 176

8310 Tranbjerg J

87406838

vm038@alboa.dk

### Kontakt

Telefontid:
Man-Fre 08.00 - 10.00
Kontortid:
Mandag 08.30 - 09.30
Torsdag 08.30 - 09.30

## Regnskaber

                                [2024 Regnskab 74.pdf](https://alboa.dk/p/MOLIRIMEDIA/1e7a4cf1-74e4-424d-37d5-08dda22a7775)

                                [2023 Regnskab 074.pdf](https://alboa.dk/p/MOLIRIMEDIA/e2774432-075a-4ee6-c805-08dcd3ad20a3)
