---
title: "Afdeling 041 - L.A. Ringsvej"
description: "Afdeling 041 - L.A. Ringsvej"
date: "2026-04-28"
created: "2025-08-28"
---

-
-
-

https://maps.google.dk/?q=56.1170506,10.1971147

# L.A. Ringsvej

Afdeling 41

## Her er der rart at bo

Vil du søge bolig i denne afdeling? Bliv medlem og skriv dig på venteliste på Aarhusbolig.

[Gå til aarhusbolig.dk](https://aarhusbolig.dk/soeg-bolig/find-boligafdeling/afdelingspraesentation/?key=715_41&amp;StepBack=true)

## Velkommen til L.A. Ringsvej

Afdeling L.A. Ringsvej, findes i Højbjerg og består af 37 lejligheder. Afdelingen er beliggende nær grønne områder og tæt på gode indkøbsmuligheder og specialbutikker på Kridthøj Torv. Afdelingen har desuden eget selskabslokale, hvor beboerne kan samles.

## Faciliteter

Elevator

Nej

Husdyr

Nej

Have

Ja

Der er tilknyttet have til stuelejligheder.

Altan

Ja

Der er tilknyttet altan til 1. sals lejligheder.

Carport/garage

Nej

Forbrug

Ja

Vand er indeholdt i huslejen. Varme fordeles efter bi-måler. El afregnes dirkete til leverandør.

Hårde hvidevarer

Ja

Komfur og emhætte er tilknyttet, Køleskab og fryseskab medbringes af lejeren.

Selskabslokale

Ja

Selskabslokale fælles med afd. 20, Elverdalsparken og afd. 22 Olaf Rudes Vej.

TV og internet

Ja

Leveres af Yousee + AURA fiber

Kælderrum

Ja

Der er pulterrum til alle lejemål.

Trappevask

Ja

Påhviler lejer.

Gæsteværelse

Nej

Vaskeri

Ja

Vedligehold

A-Ordning

Legeplads

Nej

Ladestander

Ja

Der er ladestandere opsat i afdelingen

Røgfri

Nej

                        Se flere

## Her er der rart at bo

Bliv en del af det gode fællesskab

## Lejemål i afdelingen

Almindelig bolig

2 værelses

boliger

Almindelig bolig

3 værelses

boliger

Boligtype

Værelser

Størrelse

Husleje

Indskud/dp

Plantegning

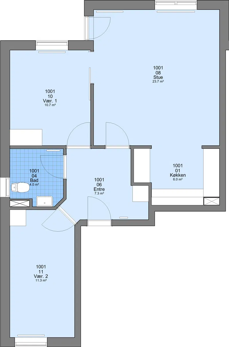
Almindelig bolig

2

64 m²

6369 kr.

12800 kr.

![](https://alboa.dk/i/MOLIRIMEDIA/cbe6567e-be80-4afc-bba3-08dcd3ad20a3?width=800)

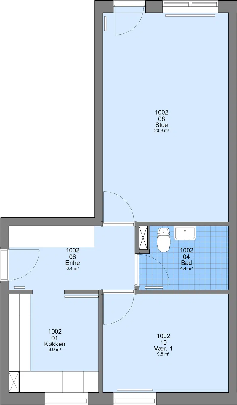
Almindelig bolig

3

81 m²

7692 kr.

16200 kr.

![](https://alboa.dk/i/MOLIRIMEDIA/98cd0f2b-7083-4622-c4d9-08dcd3ad20a3?width=800)

## Området

Midtbyen

meter

Park/natur

meter

Træningsmuligheder

meter

Offentlig transport

meter

Indkøbsmuligheder

meter

Skole

meter

Institution

meter

## Inspektør

### Kent Boholdt Larsen

87406757

kel@alboa.dk

## Varmemester

### John Roesen

Adresse:

Olaf Rudes Vej 25, Kld.

8270 Højbjerg

[87 406 802](tel:87%20406%20802 "87 406 802")

vm002@alboa.dk

### Kontakt

Telefontid:
Man-Fre 08.00 - 10.00
Kontortid:
Mandag 08.30 - 09.30
Torsdag 15.00 - 16.00

## Regnskaber

                                [2024 Regnskab 41.pdf](https://alboa.dk/p/MOLIRIMEDIA/55755475-949e-4a7a-37c6-08dda22a7775)

                                [2023 Regnskab 041.pdf](https://alboa.dk/p/MOLIRIMEDIA/f993990f-f1f6-4995-f269-08dcfd846118)
