---
title: "Afdeling 035 - Kalkærparken"
description: "Afdeling 035 - Kalkærparken"
date: "2026-04-28"
created: "2024-09-12"
---

-
-
-

https://maps.google.dk/?q=56.1096956,10.1692135

# Kalkærparken

Afdeling 35

## Her er der rart at bo

Vil du søge bolig i denne afdeling? Bliv medlem og skriv dig på venteliste på Aarhusbolig.

[Gå til aarhusbolig.dk](https://aarhusbolig.dk/soeg-bolig/find-boligafdeling/afdelingspraesentation/?key=715_35&amp;StepBack=true)

## Velkommen til Kalkærparken

Afdelingen er opføret i 1970-72 som murstenbyggeri. Rækkehusene er i to etager og gårdhavehuse i ét plan. Afdelingen blev renoveret i 2020, hvilket har givet et friskt og moderne udtryk til alle boligerne. Kalkjærparken er beliggende ved Ringvej Syd, tæt på busforbindelser og indkøb.

## Faciliteter

Elevator

Nej

Husdyr

Ja

Det er tilladt at holde to husdyr.

Have

Ja

Alle lejemål har have - undtagen 2 rums boliger på 1. sal.

Altan

Nej

Carport/garage

Ja

70 garager udlejes efter venteliste.

Forbrug

Ja

Afregningsform for vand, varme og el varierer afhængigt af lejemålstype.

Hårde hvidevarer

Ja

Alle lejemål har tilknyttet komfur, emhætte, køleskab og fryseskab - 2 rums boliger har føle-/fryseskab.

Selskabslokale

Nej

TV og internet

Ja

Leveres af Yousee + AURA fiber

Kælderrum

Ja

Der er tilknyttet udhus/skur til gårdhavehusene.

Trappevask

Nej

Gæsteværelse

Nej

Vaskeri

Ja

Alle boligerne har vaskemaskine.

Vedligehold

A-Ordning

Legeplads

Ja

Ladestander

Ja

Der er 8 ladepladser.

Røgfri

Nej

                        Se flere

## Her er der rart at bo

Bliv en del af det gode fællesskab

## Lejemål i afdelingen

Almindelig bolig

2 værelses

boliger

Almindelig bolig

5 værelses

boliger

Boligtype

Værelser

Størrelse

Husleje

Indskud/dp

Plantegning

Almindelig bolig

2

49 m²

5224 kr.

9800 kr.

![](https://alboa.dk/i/MOLIRIMEDIA/8c44d55e-e356-4985-a77b-08dcd3ad20a3?width=800)

Almindelig bolig

2

75 m²

6420 kr.

15000 kr.

![](https://alboa.dk/i/MOLIRIMEDIA/8c0d63b9-3244-4eb1-a6d0-08dcd3ad20a3?width=800)

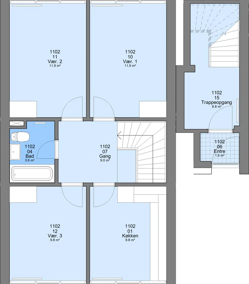
Almindelig bolig

5

122 m²

9518 kr.

24400 kr.

![](https://alboa.dk/i/MOLIRIMEDIA/0a0fc3aa-2990-4ccb-ad5a-08dcd3ad20a3?width=800)

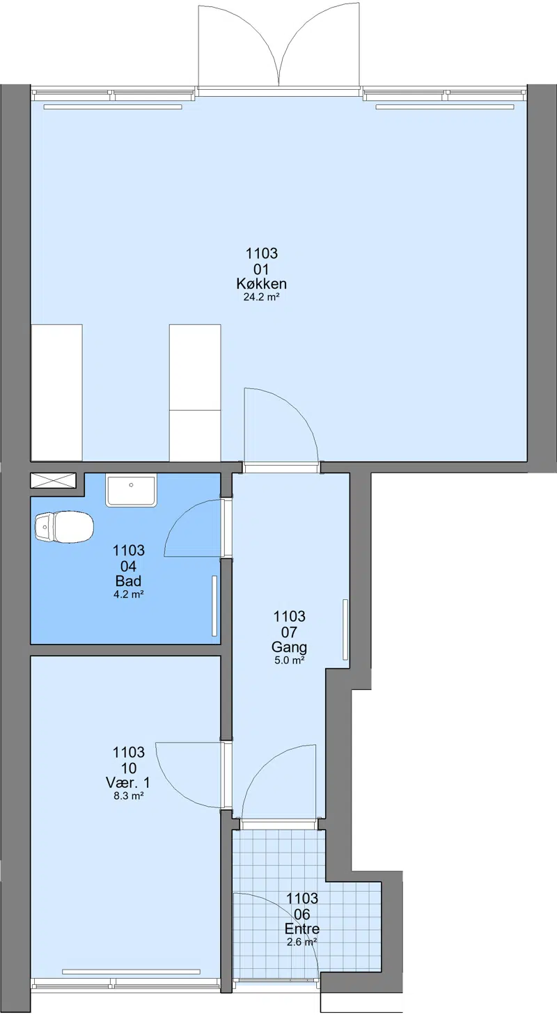
Almindelig bolig

5

130 m²

9984 kr.

26000 kr.

![](https://alboa.dk/i/MOLIRIMEDIA/9c804d1e-d222-430b-a8ab-08dcd3ad20a3?width=800)

Almindelig bolig

5

124 m²

9432 kr.

24800 kr.

![](https://alboa.dk/i/MOLIRIMEDIA/712ae084-d107-45a2-b064-08dcd3ad20a3?width=800)

## Området

Midtbyen

meter

Park/natur

meter

Træningsmuligheder

meter

Offentlig transport

meter

Indkøbsmuligheder

meter

Skole

meter

Institution

meter

## Inspektør

### Claus Boch

[87 406 765](tel:87%20406%20765 "87 406 765")

clb@alboa.dk

## Varmemester

### Allan Schultz

Adresse:

Pottemagertoften 4A

8270 Højbjerg

87406840

vm040@alboa.dk

### Kontakt

Telefontid:
Man-Fre 08.00 - 10.00
Kontortid:
Man-Fre 08.30 - 09.30
Samt torsdag 15.00 - 16.00

## Regnskaber

                                [2024 Regnskab 35.pdf](https://alboa.dk/p/MOLIRIMEDIA/f8c8ec81-1735-4703-37b0-08dda22a7775)

                                [2023 Regnskab 035.pdf](https://alboa.dk/p/MOLIRIMEDIA/ded66151-1c2a-4dcd-da5e-08dcd3ad20a3)
