---
title: "Afdeling 026 - Kjærslund"
description: "Afdeling 026 - Kjærslund"
date: "2026-04-28"
created: "2024-09-12"
---

-
-
-

https://maps.google.dk/?q=56.1103371,10.1515999

# Kjærslund

Afdeling 26

## Her er der rart at bo

Vil du søge bolig i denne afdeling? Bliv medlem og skriv dig på venteliste på Aarhusbolig.

[Gå til Aarhusbolig.dk](https://aarhusbolig.dk/soeg-bolig/find-boligafdeling/afdelingspraesentation/?key=715_26&amp;StepBack=true)

## Velkommen til Kjærslund

Afdelingen er opført i 1968, som betonbyggeri og er beliggende i periferien af Viby i retning mod Holme og Højbjerg. Afdelingen gennemgår en total facaderenovering og får nye vinduer i 2011/2012.

## Faciliteter

Elevator

Nej

Husdyr

Nej

Have

Ja

Der er tilknyttet have til stuelejlighederne.

Altan

Ja

Der er tilknyttet lukket altan til 1. og 2. sals lejligheder.

Carport/garage

Ja

46 udlejes efter venteliste.

Forbrug

Ja

Vand, varme og el fordeles efter bi-måler.

Hårde hvidevarer

Ja

Komfur, emhætte, køleskab og fryseskab er tilknyttet alle lejemål.

Selskabslokale

Nej

TV og internet

Ja

Leveres af Norlys + AURA fiber

Kælderrum

Ja

Alle lejemål har tilknyttet kælderrum - ekstra kælderrum kan lejes.

Trappevask

Ja

Trappevask betales via huslejen.

Gæsteværelse

Nej

Vaskeri

Ja

Vedligehold

A-Ordning

Legeplads

Ja

Ladestander

Ja

Der er ladestandere opsat i afdelingen

Røgfri

Nej

                        Se flere

## Her er der rart at bo

Bliv en del af det gode fællesskab

## Lejemål i afdelingen

Almindelig bolig

1 værelses

boliger

Almindelig bolig

2 værelses

boliger

Almindelig bolig

3 værelses

boliger

Almindelig bolig

4 værelses

boliger

Almindelig bolig

5 værelses

boliger

Boligtype

Værelser

Størrelse

Husleje

Indskud/dp

Plantegning

Almindelig bolig

1

34 m²

2845 kr.

7000 kr.

![](https://alboa.dk/i/MOLIRIMEDIA/a05c8268-4110-4dbb-a577-08dcd3ad20a3?width=800)

Almindelig bolig

2

51 m²

4161 kr.

10200 kr.

![](https://alboa.dk/i/MOLIRIMEDIA/42c3759b-36c4-4b40-b678-08dcd3ad20a3?width=800)

Almindelig bolig

3

91 m²

7426 kr.

18200 kr.

![](https://alboa.dk/i/MOLIRIMEDIA/a4a66d34-24e2-472e-b33a-08dcd3ad20a3?width=800)

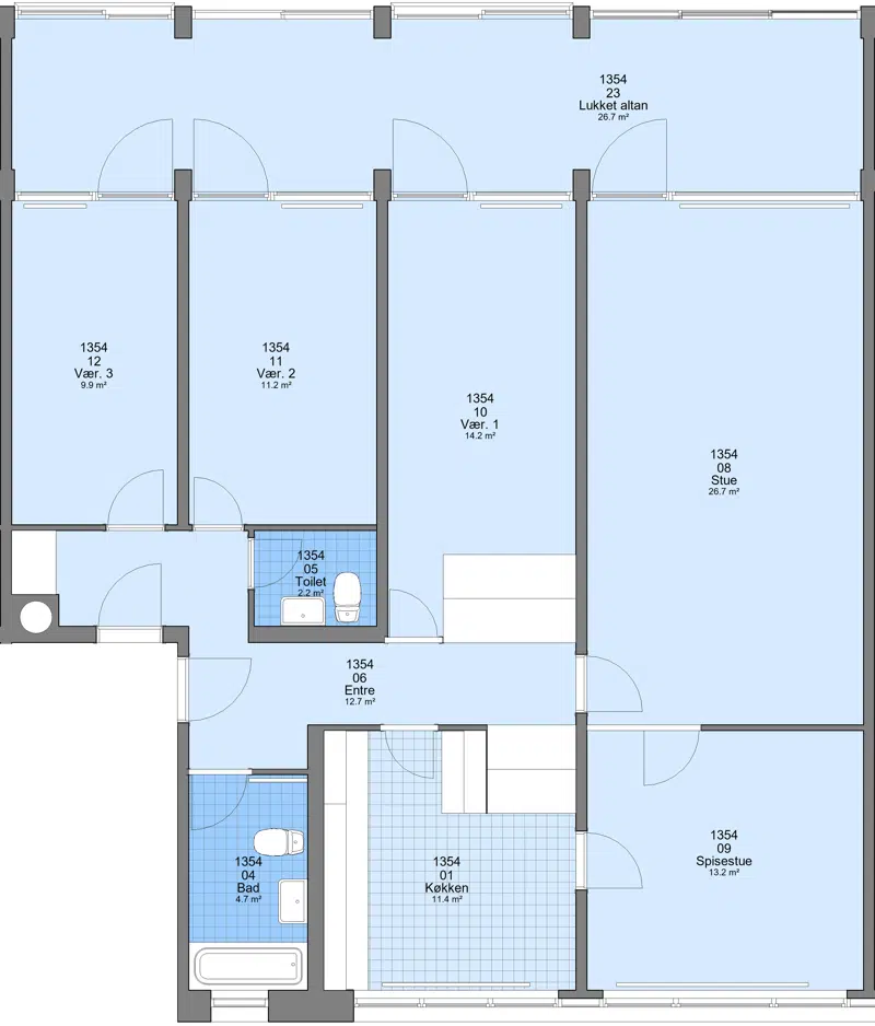
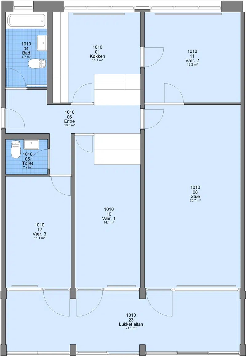
Almindelig bolig

4

107 m²

8704 kr.

21400 kr.

![](https://alboa.dk/i/MOLIRIMEDIA/26040d56-73b6-4309-a886-08dcd3ad20a3?width=800)

Almindelig bolig

5

125 m²

10227 kr.

25200 kr.

![](https://alboa.dk/i/MOLIRIMEDIA/f095409d-44d0-41b0-b16a-08dcd3ad20a3?width=800)

## Området

Midtbyen

meter

Park/natur

meter

Træningsmuligheder

meter

Offentlig transport

meter

Indkøbsmuligheder

meter

Skole

meter

Institution

meter

## Inspektør

### Allan Haahr

87406755

alh@alboa.dk

## Varmemester

### Bo Jespersen

Adresse:

Kjærslund 3, Kld.

8260 Viby J

[87 406 826](tel:87%20406%20826 "87 406 826")

vm026@alboa.dk

### Kontakt

Telefontid:
Man-Fre 08.00 - 10.00
Kontortid:
Tirsdag 08.30 - 09.00
Torsdag 15.00 - 17.00

## Regnskaber

                                [2024 Regnskab 26.pdf](https://alboa.dk/p/MOLIRIMEDIA/db9d2d39-54e6-466a-37db-08dda22a7775)

                                [2023 Regnskab 026.pdf](https://alboa.dk/p/MOLIRIMEDIA/42a0c4b2-5f28-41e8-d7ea-08dcd3ad20a3)
