---
title: "Afdeling 015 - Dalvangen"
description: "Afdeling 015 - Dalvangen"
date: "2026-04-28"
created: "2024-09-25"
---

-
-

https://maps.google.dk/?q=56.112996,10.21461

# Dalvangen

Afdeling 15

## Her er der rart at bo

Vil du søge bolig i denne afdeling? Bliv medlem og skriv dig på venteliste på Aarhusbolig.

[Gå til Aarhusbolig.dk](https://aarhusbolig.dk/soeg-bolig/find-boligafdeling/afdelingspraesentation/?key=715_15&amp;StepBack=true)

## Velkommen til Dalvangen

Afdelingen, opført i 1956-57 som murstensbyggeri, er beliggende i Højbjerg tæt på skoven. Området byder på mange faciliteter, herunder gode busforbindelser, skoler og børneinstitutioner. Derudover er der flere store indkøbscentre i nærheden, såsom Skådecenteret og Kridthøj Torv.

## Faciliteter

Elevator

Nej

Husdyr

Ja

1 hund eller 1 kat tilladt.

Have

Ja

Altan

Nej

Carport/garage

Ja

10 fælles carporte.

Forbrug

Ja

Vand og varme fordeles efter bi-måler. El afregnes dirkete til leverandør.

Hårde hvidevarer

Ja

Selskabslokale

Nej

TV og internet

Ja

Leveres af Yousee + AURA fiber

Kælderrum

Nej

Trappevask

Nej

Gæsteværelse

Nej

Vaskeri

Ja

Vedligehold

A-Ordning

Legeplads

Nej

Ladestander

Nej

Røgfri

Nej

                        Se flere

## Her er der rart at bo

Bliv en del af det gode fællesskab

## Lejemål i afdelingen

Almindelig bolig

3 værelses

boliger

Almindelig bolig

5 værelses

boliger

Boligtype

Værelser

Størrelse

Husleje

Indskud/dp

Plantegning

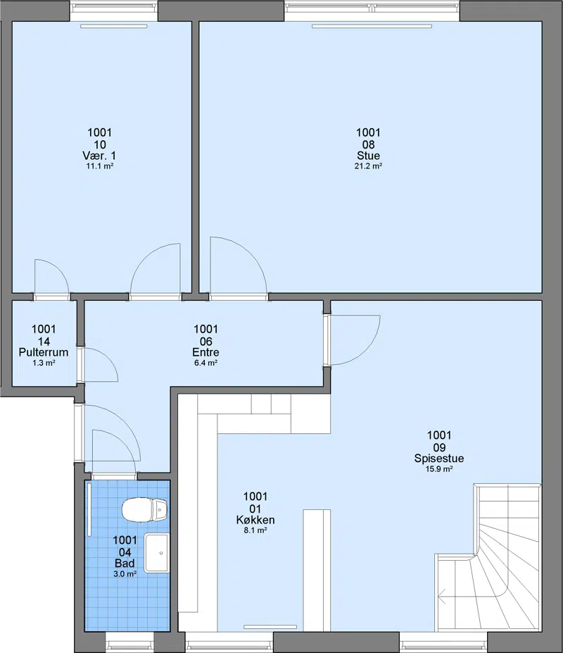
Almindelig bolig

3

82 m²

5380 kr.

16200 kr.

![](https://alboa.dk/i/MOLIRIMEDIA/8ff7b449-c8f2-4e4b-ab8b-08dcd3ad20a3?width=800)

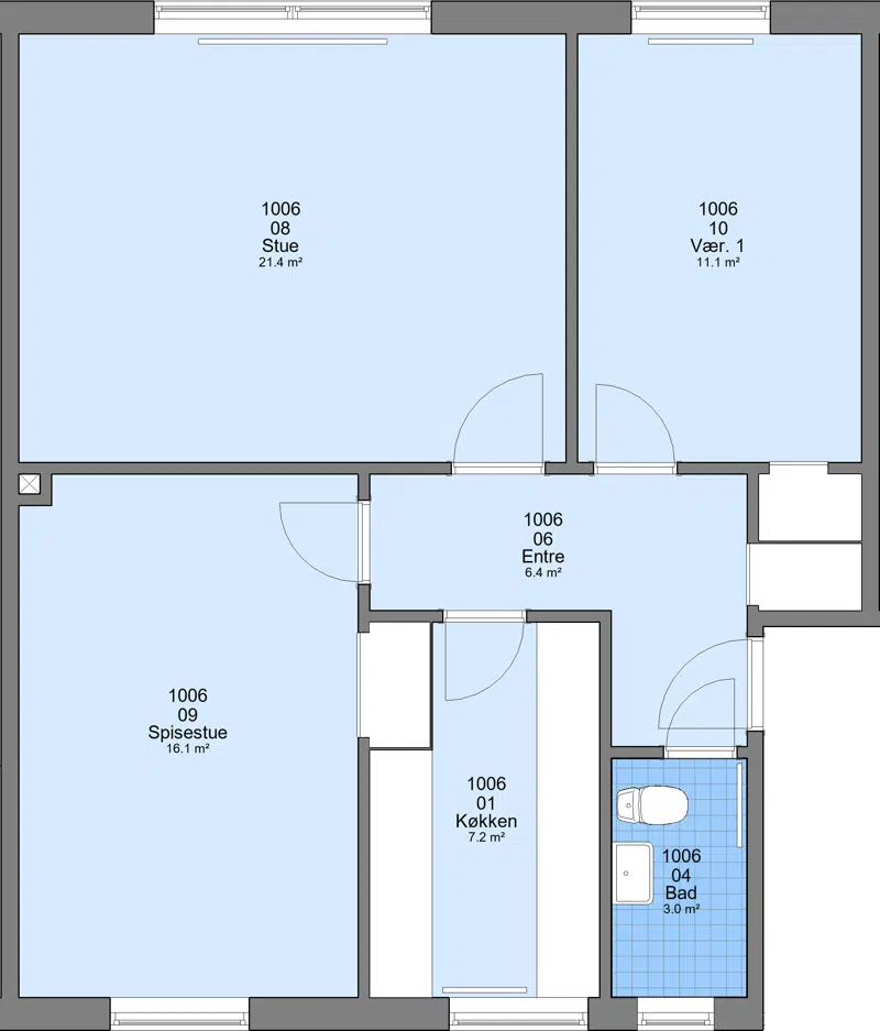
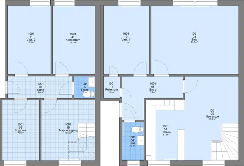
Almindelig bolig

5

106 m²

7072 kr.

21200 kr.

![](https://alboa.dk/i/MOLIRIMEDIA/f346086a-df0b-40f9-af64-08dcd3ad20a3?width=800)






![](https://alboa.dk/i/MOLIRIMEDIA/f346086a-df0b-40f9-af64-08dcd3ad20a3?width=800)

![](https://alboa.dk/i/MOLIRIMEDIA/f2c76b38-0331-4a31-a4f3-08dcd3ad20a3?width=800)

![](https://alboa.dk/i/MOLIRIMEDIA/5741ca51-bbd5-49f6-b38c-08dcd3ad20a3?width=800)

![](https://alboa.dk/i/MOLIRIMEDIA/f346086a-df0b-40f9-af64-08dcd3ad20a3?width=800)

![](https://alboa.dk/i/MOLIRIMEDIA/f2c76b38-0331-4a31-a4f3-08dcd3ad20a3?width=800)

![](https://alboa.dk/i/MOLIRIMEDIA/5741ca51-bbd5-49f6-b38c-08dcd3ad20a3?width=800)

## Området

Midtbyen

meter

Park/natur

meter

Træningsmuligheder

meter

Offentlig transport

meter

Indkøbsmuligheder

meter

Skole

meter

Institution

meter

## Inspektør

### Kent Boholdt Larsen

87406757

kel@alboa.dk

## Varmemester

### John Roesen

Adresse:

Olaf Rudes Vej 25, Kld.

8270 Højbjerg

[87 406 802](tel:87%20406%20802 "87 406 802")

vm002@alboa.dk

### Kontakt

Telefontid:
Man-Fre 08.00 - 10.00
Kontortid:
Mandag 08.30 - 09.30
Torsdag 15.00 - 16.00

## Regnskaber

                                [2024 Regnskab 15.pdf](https://alboa.dk/p/MOLIRIMEDIA/bf2c8449-55bc-4ff2-37d6-08dda22a7775)

                                [2023 Regnskab 015.pdf](https://alboa.dk/p/MOLIRIMEDIA/76953642-b8d9-4a39-cf26-08dcd3ad20a3)
