---
title: "Afdeling 004 - Frederiksparken"
description: "Afdeling 004 - Frederiksparken"
date: "2026-04-28"
created: "2024-09-12"
---

-
-
-

https://maps.google.dk/?q=56.1137286,10.2101448

# Frederiksparken

Afdeling 4

## Her er der rart at bo

Vil du søge bolig i denne afdeling? Bliv medlem og skriv dig på venteliste på Aarhusbolig.

[Gå til Aarhusbolig.dk](https://aarhusbolig.dk/soeg-bolig/find-boligafdeling/afdelingspraesentation/?key=715_4&amp;StepBack=true)

## Velkommen til Frederiksparken

Afdeling er opført i 1948/49 som murstenbyggeri i 2 etager, nær gode busforbindelser og flere store indkøbscentre i en afstand af 2-3 km. bl.a. Skåde-Centeret og Kridthøj Torv. Der er flere børneinstitutioner i området bl.a. Kragelundsskolen og Skåde skole.

## Faciliteter

Elevator

Nej

Husdyr

Ja

Indekat tilladt

Have

Nej

Altan

Ja

Der er tilknyttet altaner til alle lejemål.

Carport/garage

Ja

9 garager udlejes efter venteliste.

Forbrug

Ja

Vand er indeholdt i huslejen. Varme fordeles efter bi-måler. El afregnes dirkete til leverandør.

Hårde hvidevarer

Ja

Selskabslokale

Ja

TV og internet

Ja

Leveres af Yousee + AURA fiber

Kælderrum

Ja

Alle lejemål har kælderrum/pulterrum tilknyttet. Derudover er der 10 stk. til udlejning.

Trappevask

Ja

Trappevask betales via husleje.

Gæsteværelse

Ja

Vaskeri

Ja

Vedligehold

A-Ordning

Legeplads

Nej

Ladestander

Ja

Der er ladestandere opsat i afdelingen

Røgfri

Nej

                        Se flere

## Her er der rart at bo

Bliv en del af det gode fællesskab

## Lejemål i afdelingen

Almindelig bolig

2 værelses

boliger

Almindelig bolig

3 værelses

boliger

Almindelig bolig

4 værelses

boliger

Boligtype

Værelser

Størrelse

Husleje

Indskud/dp

Plantegning

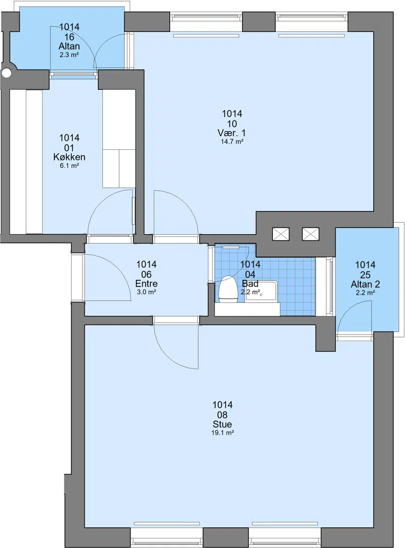
Almindelig bolig

2

70 m²

6239 kr.

14000 kr.

![](https://alboa.dk/i/MOLIRIMEDIA/6be8ac41-cb1c-408b-a32d-08dcd3ad20a3?width=800)

Almindelig bolig

3

80 m²

7066 kr.

16000 kr.

![](https://alboa.dk/i/MOLIRIMEDIA/6208ad6b-fa87-418d-a40f-08dcd3ad20a3?width=800)

Almindelig bolig

3

70 m²

6253 kr.

14000 kr.

![](https://alboa.dk/i/MOLIRIMEDIA/0f0b12da-618a-4cb9-a348-08dcd3ad20a3?width=800)

Almindelig bolig

4

87 m²

7704 kr.

17400 kr.

![](https://alboa.dk/i/MOLIRIMEDIA/aeb4bde4-acb2-43bb-a2e6-08dcd3ad20a3?width=800)

## Området

Midtbyen

meter

Park/natur

meter

Træningsmuligheder

meter

Offentlig transport

meter

Indkøbsmuligheder

meter

Skole

meter

Institution

meter

## Inspektør

### Kent Boholdt Larsen

87406757

kel@alboa.dk

## Varmemester

### John Roesen

Adresse:

Olaf Rudes Vej 25, Kld.

8270 Højbjerg

[87 406 802](tel:87%20406%20802 "87 406 802")

vm002@alboa.dk

### Kontakt

Telefontid:
Man-Fre 08.00 - 10.00
Kontortid:
Mandag 08.30 - 09.30
Torsdag 15.00 - 16.00

## Regnskaber

                                [2024 Regnskab 4.pdf](https://alboa.dk/p/MOLIRIMEDIA/78c5d3c0-92fb-45e7-37b2-08dda22a7775)

                                [2023 Regnskab 004.pdf](https://alboa.dk/p/MOLIRIMEDIA/6ce285b5-6773-487f-db61-08dcd3ad20a3)
